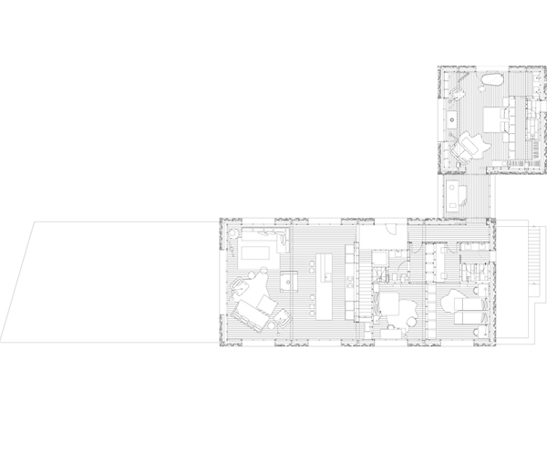
Guils de la Cerdanya
Vivienda unifamiliar., Gerona 2011 Colaboración con MJCArquitectura

Imágenes

Planos

Volver

Elena de Moragas, Arquitectura
C/Zaragoza 74, 1º
08006 Barcelona
M: 659 945 889
emoragas@coac.net