Salvi
Reforma edificio e interiorismo, Barcelona 2011

Imágenes

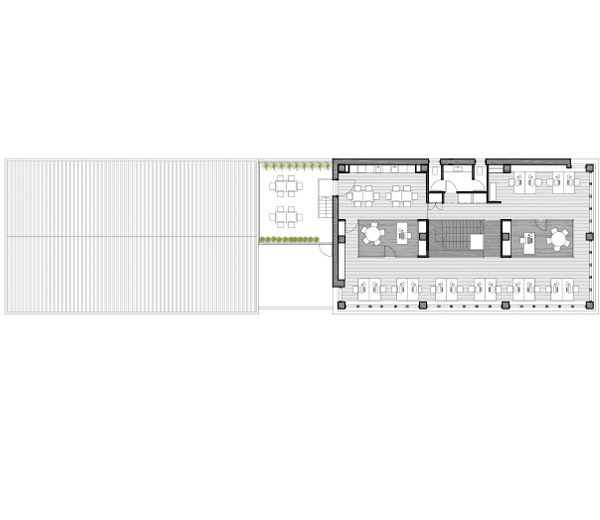
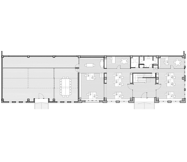
Planos

Volver

Elena de Moragas, Arquitectura
C/Zaragoza 74, 1º
08006 Barcelona
M: 659 945 889
emoragas@coac.net