Clínica Dermatológica
Reforma e interiorismo, Barcelona 2004

Imágenes

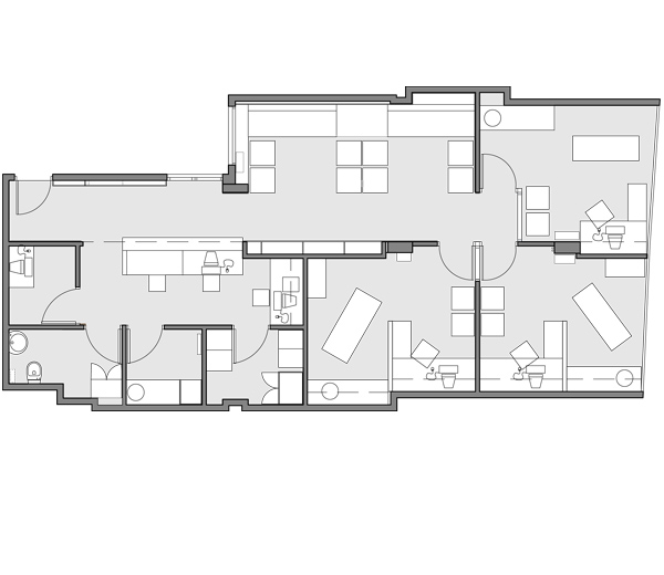
Planos

Volver

Elena de Moragas, Arquitectura
C/Zaragoza 74, 1º
08006 Barcelona
M: 659 945 889
emoragas@coac.net